

”暮らし”から”住まい”を考える
様々な「暮らし方」が始まっています。少子化・高齢化社会が増々進み、家族のあり方が見直され自分らしい生き方や自分らしい「暮らし方」の新しい住まいづくりが加速しています。そんな時代を迎えた今、Cute はコンパクトでしっかりした構造と機能で様々なライフスタイルに対応できる「暮らし方」を提案していきます。

機能的なアイデアを詰め込んだコンパクト設計
平屋ならではの使い易さと基本性能を搭載したかわいい平屋の誕生です。
・軸組+モノコック構造のハイブリット構造、災害に強い家
・省令準耐火建築物仕様、火災保険料が格安の家
・オール脂複層ガラス、断熱玄関ドア、光熱費の少ない
・タイガーハイクリーンボード、健康建具、空気のきれいな家
・省エネ設備、冷暖房設備、照明器具付フル装備高性能な家
・外壁下地にタイベックシルバー、EXハイパー採用の高耐久な家

Cute8について (8.31坪)


機能的なアイデアを積め込んだコンパクト設計。
平屋ならではの使い易さと基本性能を搭載したかわいい平屋の誕生です。
機能性を工夫してゆとりの空間に。コンパクトに暮らす生活からちょっとの工夫でゆとりの空間づくりへ。オプション仕様の格納ベット、格納デスクをおすすめしています。

Cute10について (10.0坪)

全ての機能が揃ったコンパクト設計。シングルライフにも最適なプラン。
コンパクトながら暮らしの全ての要素を備えた機能的な間取り。シングルライフはもちろん2人でも暮らせるプランです。
アパートを脱出して思い切り自由で快適な暮らしをしてみませんか。

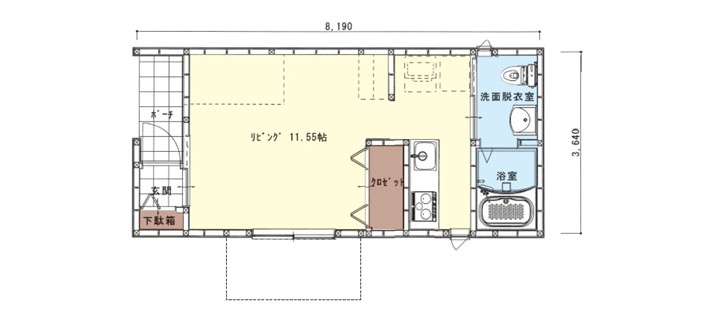
Cute11について (11.62坪)

こんな平屋が欲しかった人気No. 1プラン
ゆったりとしたLDKはお友達を呼んで楽しく語り合える広さ。6帖の洋室も広さたっぷり。大きなクローゼットをセットしました。シングルベットなら2つ置ける広さです。新しい暮らし方の提案です。

Cute15について (15.25坪)

ほのかな気配を感じるかわいいお子さんをはぐくむための家
壁付けキッチンでLDK を大きく使う工夫をした問取り。各洋室に大きいクローゼットをセット。お風呂はゆったり1タイプ。洗面化粧台は独立させ、帰って来てすぐ手洗い、うがいの新生活様式対応設計。脱衣所も広く使えます。シングルマザーにも人気の間取りです。

Cute17について (17.50坪)

夢を実現する贅沢仕様。ワンランクアップの暮らしの提案。
いろんなものが置ける大容量の玄関クローク。寝室、サンルームにカウンターを設置し、家事も仕事も気配り設計。サンルームは洗い終わった洗濯物はその場で干して、乾いたらそのままファミリークロークへの贅沢仕様の家です。

